Unterkunftsgebäude Karl
München Maxvorstadt
Projekt
Umbau und Sanierung einer Flüchtlingsunterkunft Bauherr
Landeshauptstadt München
Landeshauptstadt München
Vertreten durch
Baureferat München
Baureferat München
Objektplanung
Bohn Architekten
Leistungsphasen
2 bis 9, HOAI
Fertigstellung
2015/2016
Baukosten
1 Mio. Euro
Details
Grundfläche 4.301 m²
Geschossfläche 10.543 m²
Bruttorauminhalt 61.828 m³
Unterkunftsgebäude Karl
mit werkraum
Die Flüchtlingsunterkunft in der Karlstraße diente vom September 2015 bis Juni 2016 als Überbrückungseinrichtung. Die Bewohner hatten bereits einen Asylantrag gestellt und sollten von der Aufnahmeeinrichtung (z.B. Bayernkaserne) in eine staatliche Gemeinschaftsunterkunft im Stadtgebiet München umverlegt werden. Da nicht ausreichend Plätze im Stadtgebiet vorhanden waren, wurden diese Menschen bis zur Errichtung weiterer Gemeinschaftsunterkünfte dort untergebracht.
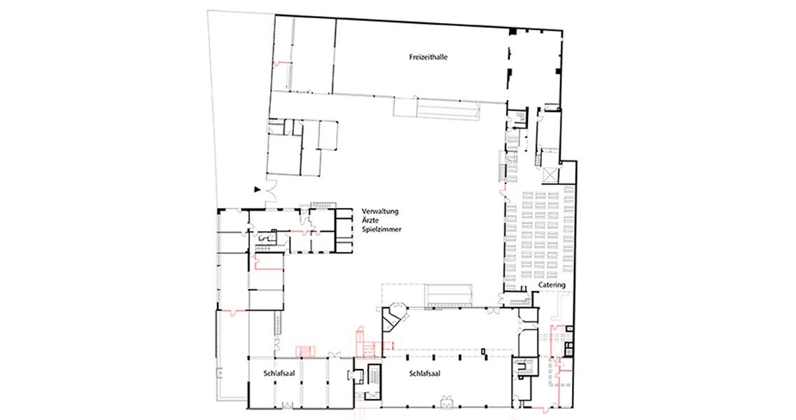
Bei dem zu ertüchtigenden Gebäudekomplex handelt es sich um das ehemalige Mahaggelände an der Karlsstraße, Ecke Denisstraße in der Münchner Maxvorstadt. Im Erdgeschoss liegen die ehemaligen Werkstätten und Showrooms. Dort wurden im September 2015 während der zahlreichen Ankünfte von Geflüchteten in München kurzfristig viele Menschen in den Hallen untergebracht. Der Hof wurde mit Containern und Zelten als Catering- und Sanitärbereich eingerichtet.
Zum Gebäudekomplex gehören auch zwei 6 geschossige Gebäude, die schnellstmöglich wohntüchtig gemacht wurden. Mit einfachsten Mitteln, Geschoss für Geschoss, konnte ein großer Teil der Bewohner so in die 15 bis 36 m² großen Räume ziehen. Dafür wurden zum Beispiel, um den zweiten baulichen Rettungsweg zu gewährleisten, Gerüsttreppentürme als Fluchttreppen angemietet. Die Büroräume wurden in Trockenbauweise teilweise unterteilt und v.a. brandschutztechnisch ertüchtigt. Stockwerkweise wurde je ein Sanitärbereich für Männer und Frauen ausgebaut.
Zum Gebäudekomplex gehören auch zwei 6 geschossige Gebäude, die schnellstmöglich wohntüchtig gemacht wurden. Mit einfachsten Mitteln, Geschoss für Geschoss, konnte ein großer Teil der Bewohner so in die 15 bis 36 m² großen Räume ziehen. Dafür wurden zum Beispiel, um den zweiten baulichen Rettungsweg zu gewährleisten, Gerüsttreppentürme als Fluchttreppen angemietet. Die Büroräume wurden in Trockenbauweise teilweise unterteilt und v.a. brandschutztechnisch ertüchtigt. Stockwerkweise wurde je ein Sanitärbereich für Männer und Frauen ausgebaut.
In einer der Hallen haben wir einen Cateringbereich mit Spülküche realisiert, so dass der Hof wieder als Freibereich genutzt werden konnte. Zu den weiteren Einrichtungen gehörten Büros für die Asylsozialberatung, Büros für die Verwaltung, Arzträume, Spielzimmer, Waschräume und zusätzliche sanitäre Einrichtungen.
Mittlerweile wurden die ca. 800 Bewohner in zwischenzeitlich fertiggestellte Gemeinschaftsunterkünfte verlegt.
Mittlerweile wurden die ca. 800 Bewohner in zwischenzeitlich fertiggestellte Gemeinschaftsunterkünfte verlegt.
Fotos
© Bohn Architekten GbR
werkraum
- Eine Selbstbauwerkstatt als Pilotprojekt in der Flüchtlingsunterkunft Karlstraße
Projektbeteiligte am werkraum:
Hans Sauer Stiftung
Akademie der bildenden Künste München
Caritas der Erzdiözese München und Freising
Landeshauptstadt München
Bohn Architekten
Mehr über das Projekt der Hans Sauer Stiftung
hier.
Als Architektin, die das Flüchtlingsheim in der Karlstraße, in der der werkraum geboren wurde, umgebaut hat, habe ich erleben müssen, dass so sehr wir uns auch bemühten unsere Arbeit gut zu machen, die Lebensbedingungen weit weg waren von dem, was man anderen Menschen wünscht. Und weit weg von dem, was in integrativen und zukunftsweisenden Projekten, die man aus der Theorie kennt, angestrebt wird. Diese unterscheiden sich von unserem Umbau nämlich massiv durch die Dauer der Planungsphase. Der Zeitdruck war enorm, weil die Baustelle schon bevölkert war, bevor sie begonnen hatte. Es gab also quasi keine Planungsphase, es ging prioritär darum, die Grundbedürfnisse möglichst schnell zu decken. Dazu gehörten neben Sicherheitsaspekten wie Brandschutz: Schlafen, Essen, Duschen.
Als ich in Kontakt mit der Hans Sauer Stiftung gekommen bin, berichtete ich daher frustriert von dem kompletten Mangel an Aufenthaltsbereichen. Zu den Grundbedürfnissen des Menschen gehört nämlich genauso sozialer Austausch. Der Raum war da, aber er war nicht gestaltet und somit nicht nutzbar. Für die soziale Interaktion sahen wir vor allen weiteren komplexen (und wichtigen) Faktoren, eine ganz grundlegende Bedingung: Zusammensitzen können.
Als Architektin, die das Flüchtlingsheim in der Karlstraße, in der der werkraum geboren wurde, umgebaut hat, habe ich erleben müssen, dass so sehr wir uns auch bemühten unsere Arbeit gut zu machen, die Lebensbedingungen weit weg waren von dem, was man anderen Menschen wünscht. Und weit weg von dem, was in integrativen und zukunftsweisenden Projekten, die man aus der Theorie kennt, angestrebt wird. Diese unterscheiden sich von unserem Umbau nämlich massiv durch die Dauer der Planungsphase. Der Zeitdruck war enorm, weil die Baustelle schon bevölkert war, bevor sie begonnen hatte. Es gab also quasi keine Planungsphase, es ging prioritär darum, die Grundbedürfnisse möglichst schnell zu decken. Dazu gehörten neben Sicherheitsaspekten wie Brandschutz: Schlafen, Essen, Duschen.
Als ich in Kontakt mit der Hans Sauer Stiftung gekommen bin, berichtete ich daher frustriert von dem kompletten Mangel an Aufenthaltsbereichen. Zu den Grundbedürfnissen des Menschen gehört nämlich genauso sozialer Austausch. Der Raum war da, aber er war nicht gestaltet und somit nicht nutzbar. Für die soziale Interaktion sahen wir vor allen weiteren komplexen (und wichtigen) Faktoren, eine ganz grundlegende Bedingung: Zusammensitzen können.
In der Unterkunft gab es überhaupt keine Sitzgelegenheiten, außer den Bierbänken im Cateringbereich, der nur zu Essenszeiten zugängig war. Als dann die Idee der Selbstbauwerkstatt entstand und wir den großen Hof mit einfachen Bänken ausgestattet haben, wurde der soziale Austausch durch Möbel möglich. Innerhalb des werkraums, wo eine Gemeinschaft entstanden war, die immer besser gelernt hat trotz aller Sprach-
probleme und Unterschiede, zu kommunizieren und zusammenzuarbeiten. Aber auch für alle in der Unterkunft, einfach durch die Möglichkeit im Hof auf der Bank zusammenzusitzen.
Was den Menschen in der Situation außerdem grundlegend fehlt, ist die Identifikation mit dem temporären Zuhause. Identifikation mit dem Ort geschieht durch Aneignung, indem der Raum subjektive und kollektive Bedeutung bekommt.
Zu den Werkzeugen der Aneignung gehört neben der Handlung, die den Raum belebt, die Gestaltung und Interpretation des Raums.
Ich hoffe, dass die Bewohner durch das Projekt, indem sie ihre Umgebung aktiv gestalten und sich damit die Unterkunft aneignen konnten, sich dort ein kleines Stück mehr zuhause fühlten. Als die sechs Meter langen Tische entstanden waren, war daher einer der schönsten Momente für mich, der diese Hoffnung bekräftigte, als ich in der geschlossenen Facebookgruppe von Ehrenamtlichen und Bewohnern der Karlstraße ein Foto von strahlenden Gesichtern um die lange Tafel beim Fastenbrechen entdeckt habe, mit der Unterschrift "Ramadan in der Karlstraße".
Anastasia Schubina
probleme und Unterschiede, zu kommunizieren und zusammenzuarbeiten. Aber auch für alle in der Unterkunft, einfach durch die Möglichkeit im Hof auf der Bank zusammenzusitzen.
Was den Menschen in der Situation außerdem grundlegend fehlt, ist die Identifikation mit dem temporären Zuhause. Identifikation mit dem Ort geschieht durch Aneignung, indem der Raum subjektive und kollektive Bedeutung bekommt.
Zu den Werkzeugen der Aneignung gehört neben der Handlung, die den Raum belebt, die Gestaltung und Interpretation des Raums.
Ich hoffe, dass die Bewohner durch das Projekt, indem sie ihre Umgebung aktiv gestalten und sich damit die Unterkunft aneignen konnten, sich dort ein kleines Stück mehr zuhause fühlten. Als die sechs Meter langen Tische entstanden waren, war daher einer der schönsten Momente für mich, der diese Hoffnung bekräftigte, als ich in der geschlossenen Facebookgruppe von Ehrenamtlichen und Bewohnern der Karlstraße ein Foto von strahlenden Gesichtern um die lange Tafel beim Fastenbrechen entdeckt habe, mit der Unterschrift "Ramadan in der Karlstraße".
Anastasia Schubina
Projektleiterin Umbau
Flüchtingsunterkunft Karlstraße
Projektbeteiligte am werkraum:
Hans Sauer Stiftung
Akademie der bildenden Künste München
Caritas der Erzdiözese München und Freising
Landeshauptstadt München
Bohn Architekten